ADG Amiens Locations studios, logements étudiants, appartements et maisons
CENTRUM 2


















Occupé
rue du maréchal Delattre de Tassigny, 80000 AMIENS
SECTEUR Centre Ville
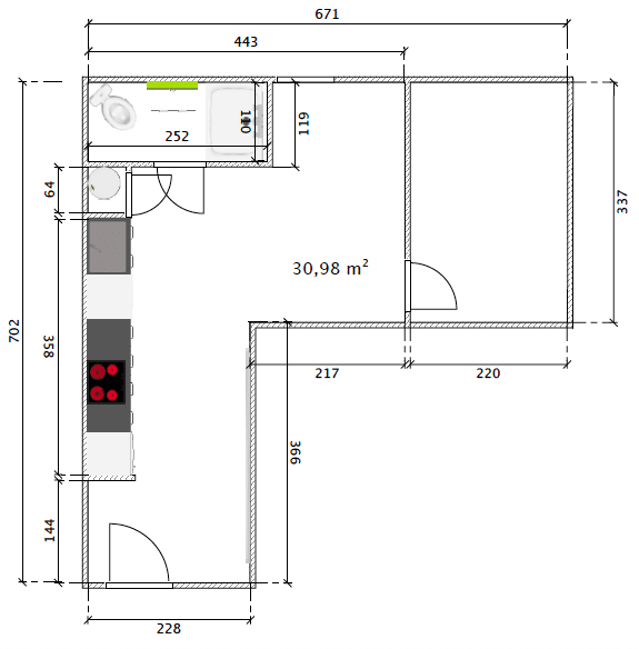
Bel appartement très lumineux à louer de type T2, d’une surface de 31 M² habitable en bon état, au 1er étage d’un immeuble sécurisé en monopropriété , rue maréchal Delattre de Tassigny à AMIENS
Emplacement idéal : commerces, centre ville, bus
Il est composé de
- 1 chambre
- 1 pièce à vivre avec 1 cuisine aménagée et équipée ( plaques de cuisson vitro, hotte, placards, évier)
- 1 salle de bain (douche, lavabo, WC)
- Possibilité de parking (selon dispo)
Prix : loyer 440 € + charges 50 € (eau + entretien commun + minuterie)
440,00 €
50
Non meublé
31
Selon disponibilité
non
Cette location vous intéresse ?
Remplissez ce formulaire et nous vous contacterons le plus rapidement possible. N’hésite pas à nous faire également part de vos besoins.
Locations similaires
COURREJOLLES 5 –
T1BIS MEUBLE de 15 m² meublé avec mezzanine, 2min à pied de la fac « citadelle » – quartier St Pierre
Centrum 9
Grand T2 de 47m² dans résidence sécurisée avec possibilité de parking ou box, situé en centre ville.
Boves 2 –
T2 MEUBLE très lumineux à louer , d’une surface de 37 M² , en bon état, au RDC d’un immeuble sécurisé en monopropriété , rue de boves à AMIENS, quartier très calme
Paillat 11
Studio de 18 M² au 2éme étage , coeur centre ville, donnant sur une cour intérieur (jardin fleuri) – immeuble sécurisé et très calme
Boves 1 –
Bel appartement MEUBLE très lumineux à louer de type T1bis, d’une surface de 24 M² , en bon état, au RDC d’un immeuble sécurisé en monopropriété , rue de boves à AMIENS, quartier très calme
Boves 3 –
Bel appartement meublé très lumineux à louer de type T1bis, d’une surface de 25 M², en bon état, au 1erétage d’un immeuble sécurisé en monopropriété , rue de Boves à AMIENS, quartier calme
Boves 4 –
Joli T2 mezzanine MEUBLE , d’une surface de 22 M² habitable en bon état, au 2éme étage d’un immeuble sécurisé en monopropriété , rue de boves à AMIENS, quartier calme
CENTRUM 3
Appartement très spacieux à louer de type T2, d’une surface de 58 M² habitable en bon état, au 1er étage d’un immeuble sécurisé en monopropriété , rue maréchal Delattre de Tassigny à AMIENS
CENTRUM 4
Appartement à louer de type T1, d’une surface de 22 M² habitable en bon état, au 1er étage d’un immeuble sécurisé en monopropriété , rue maréchal Delattre de Tassigny à AMIENS
CENTRUM 5
Bel appartement très lumineux à louer de type T2, d’une surface de 45 M² habitable en bon état, au 1er étage d’un immeuble sécurisé en monopropriété , rue maréchal Delattre de Tassigny à AMIENS
CENTRUM 7
Bel appartement lumineux à louer de type T2, d’une surface de 43 M² habitable en bon état, au 1er étage d’un immeuble sécurisé en monopropriété , rue maréchal Delattre de Tassigny à AMIENS
CENTRUM 8
Bel appartement lumineux à louer de type T2, d’une surface de 39 M² habitable en bon état, au 1er étage d’un immeuble sécurisé en monopropriété , rue maréchal Delattre de Tassigny à AMIENS
CENTRUM 10
Bel appartement lumineux à louer de type T2, d’une surface de 46 M², en très bon état, au 1er étage d’un immeuble sécurisé, rue du maréchal Delattre de Tassigny à AMIENS
CHARLES DUBOIS 1
Bel appartement lumineux à louer de type T2bis, d’une surface de 58 M² en bon état, au RDC d’un immeuble sécurisé en monopropriété, rue Charles Dubois à AMIENS, quartier calme
CHARLES DUBOIS 2
Charmant appartement lumineux avec parquets à louer de type T2, d’une surface de 27 M² en bon état, au 1er étage d’un immeuble sécurisé en monopropriété, rue Charles Dubois à AMIENS, quartier calme
CHARLES DUBOIS 3
Charmant STUDIO, d’une surface de 16 M² en bon état, au 2éme étage d’un immeuble sécurisé en monopropriété, rue Charles Dubois à AMIENS, quartier calme
CHARLES DUBOIS 4
Charmant appartement très lumineux à louer de type T1 Bis en duplex, d’une surface de 26 M² en bon état, au 2éme étage d’un immeuble sécurisé en monopropriété, rue Charles Dubois à AMIENS, quartier calme
COQUEREL 1
Bel appartement à louer de type T2, d’une surface de 27 M, en bon état, au RDC d’un immeuble sécurisé en monopropriété , rue Coquerel à AMIENS, quartier calme
COQUEREL 2
Bel appartement très lumineux à louer de type T2 duplex, d’une surface de 42 M², en bon état, au 1er étage d’un immeuble sécurisé en monopropriété , rue Coquerel à AMIENS, quartier calme
COURREJOLLES 1 –
Bel appartement MEUBLE lumineux à louer de type T1bis, d’une surface de 25 M², au RDC étage d’un immeuble sécurisé en monopropriété , rue de l’Amiral de Courrejolles à AMIENS, quartier calme
COURREJOLLES 2 –
Bel appartement MEUBLE lumineux à louer de type T1bis mezzanine, d’une surface de 23 M², au RDC étage d’un immeuble sécurisé en monopropriété , rue de l’Amiral de Courrejolles à AMIENS, quartier calme
COURREJOLLES 3 –
Bel appartement MEUBLE lumineux à louer de type STUDIO, d’une surface de 18 M², au 1er étage d’un immeuble sécurisé en monopropriété , rue de l’Amiral de Courrejolles à AMIENS, quartier calme
COZETTE 1
Bel appartement avec parquets très lumineux à louer de type T2, d’une surface de 45 M² habitable en bon état, au RDC d’un immeuble sécurisé en monopropriété, rue Cozette à AMIENS, quartier calme
COZETTE 2
Bel appartement très lumineux à louer de type STUDIO, d’une surface de 15 M² habitable en bon état, au 1er étage d’un immeuble sécurisé en monopropriété, rue Cozette à AMIENS, quartier calme
COZETTE 3
Bel appartement avec parquets très lumineux à louer de type T2, d’une surface de 27 M² habitable en bon état, au 2er étage d’un immeuble sécurisé en monopropriété, rue Cozette à AMIENS, quartier calme
COZETTE 4
Bel appartement avec parquets très lumineux à louer de type T2, d’une surface de 30 M² habitable en bon état, au 3éme étage d’un immeuble sécurisé en monopropriété, rue Cozette à AMIENS, quartier calme
DELPECH 1
Bel appartement très lumineux à louer de type STUDIO, d’une surface de 22 M², en très bon état, au RDC d’un immeuble sécurisé en monopropriété , rue Delpech à AMIENS quartier calme
DELPECH 2
Bel appartement très lumineux à louer de type T1BIS, d’une surface de 28 M² , en très bon état, au RDC d’un immeuble sécurisé en monopropriété , rue Delpech à AMIENS quartier calme
DELPECH 6
Bel appartement très lumineux à louer de type T2, d’une surface de 39 M², en très bon état, au 1er étage d’un immeuble sécurisé en monopropriété , rue Delpech à AMIENS quartier calme
DELPECH 7
Bel appartement très lumineux à louer de type T1bis Mezzanine, d’une surface de 27 M² habitable (25 M² au sol), en bon état, au 2éme étage d’un immeuble sécurisé en monopropriété , rue Delpech à AMIENS quartier calme
DELPECH 8
Bel appartement très lumineux à louer de type T1bis Mezzanine, d’une surface de 23 M² habitable (25 M² au sol) , en bon état, au 2éme étage d’un immeuble sécurisé en monopropriété , rue Delpech à AMIENS quartier calme
DELPECH 9
Bel appartement très lumineux à louer de type T1bis Mezzanine, d’une surface de 23 M² habitable (25M² au sol) , en bon état, au 2éme étage d’un immeuble sécurisé en monopropriété , rue Delpech à AMIENS quartier calme
DIJON 2
Bel appartement très lumineux à louer de type T2 avec parquets, d’une surface de 39 M² habitable , en très bon état, au RDC d’un immeuble sécurisé en monopropriété , rue Dijon à AMIENS, quartier calme
DIJON 3
Bel appartement très lumineux à louer de type T1BIS avec parquets, d’une surface de 15 M² habitable , en très bon état, au RDC d’un immeuble sécurisé en monopropriété , rue Dijon à AMIENS, quartier calme
DIJON 4
Bel appartement très lumineux à louer de type T2 avec parquets, d’une surface de 39 M² habitable , en très bon état, au 1er étage d’un immeuble sécurisé en monopropriété , rue Dijon à AMIENS, quartier calme
DIJON 5
Bel appartement très lumineux à louer de type STUDIO avec mezzanine, d’une surface de 13 M² habitable (31 M² au sol) , en très bon état, au 2éme étage d’un immeuble sécurisé en monopropriété , rue Dijon à AMIENS, quartier calme
DUCANGE 4
Bel appartement très lumineux à louer de type STUDIO, d’une surface de 27 M² habitable , en très bon état, au RDC d’un immeuble sécurisé en monopropriété avec cour intérieure, bd Ducange à AMIENS, quartier calme
DUCANGE 5
Bel appartement très lumineux à louer de type STUDIO, d’une surface de 22 M² habitable, en très bon état, au RDC d’un immeuble sécurisé en monopropriété avec cour intérieure, bd Ducange à AMIENS, quartier calme
DUPONTREUE 57 3
Bel appartement très lumineux à louer de type T2, d’une surface de 36 M², en très bon état, au 2éme étage d’un immeuble sécurisé en monopropriété , rue Léon Dupontreué à AMIENS, quartier calme.
DUPONTREUE 57 5
Bel appartement très lumineux à louer de type T1BIS, d’une surface de 24 M² habitable en bon état, au RDC d’un immeuble sécurisé en monopropriété , rue Léon Dupontreué à AMIENS, quartier calme
ELBEUF 1
Bel appartement lumineux à louer de type T1BIS, d’une surface de 29 M², en très bon état, au RDC d’un immeuble sécurisé en monopropriété , rue Elbeuf à AMIENS, quartier calme.
ELBEUF 2
Bel appartement très lumineux à louer de type T1BIS, d’une surface de 23 M², en très bon état, au RDC d’un immeuble sécurisé en monopropriété , rue Elbeuf à AMIENS, quartier calme.
ELBEUF 3
Bel appartement lumineux à louer de type T1BIS, d’une surface de 25 M², en très bon état, au RDC d’un immeuble sécurisé en monopropriété , rue Elbeuf à AMIENS, quartier calme.
ELBEUF 4
Bel appartement très lumineux à louer de type T1BIS, d’une surface de 25 M², en très bon état, au RDC d’un immeuble sécurisé en monopropriété , rue Elbeuf à AMIENS, quartier calme.
ELBEUF 5
Bel appartement lumineux à louer de type T1BIS, d’une surface de 23 M², en très bon état, au 1er étage d’un immeuble sécurisé en monopropriété , rue Elbeuf à AMIENS, quartier calme.
ELBEUF 6
Bel appartement lumineux à louer de type T1BIS, d’une surface de 23 M², en très bon état, au 1er étage d’un immeuble sécurisé en monopropriété , rue Elbeuf à AMIENS, quartier calme.
ELBEUF 7
Bel appartement lumineux à louer de type T1BIS, d’une surface de 29 M², en très bon état, au 1er étage d’un immeuble sécurisé en monopropriété , rue Elbeuf à AMIENS, quartier calme.
ELBEUF 10
Bel appartement lumineux à louer de type T1BIS, d’une surface de 32/43 M², en très bon état, au 2eme étage d’un immeuble sécurisé en monopropriété , rue Elbeuf à AMIENS, quartier calme.
ELBEUF 11
Bel appartement lumineux à louer de type T1BIS, d’une surface de 33/44 M², en très bon état, au 2eme étage d’un immeuble sécurisé en monopropriété , rue Elbeuf à AMIENS, quartier calme.
ENGUERRAND 1 –
Bel appartement MEUBLE très lumineux à louer de type T1BIS, d’une surface de 15 M² en bon état, au RDC d’un immeuble sécurisé en monopropriété , rue Enguerrand à AMIENS, quartier calme
ENGUERRAND 2 –
Bel appartement MEUBLE lumineux à louer de type T1BIS, d’une surface de 17 M² en bon état, au RDC d’un immeuble sécurisé en monopropriété , rue Enguerrand à AMIENS, quartier calme
ENGUERRAND 6 –
MEUBLE à lumineux à louer de type STUDIO, d’une surface de 15 M² en bon état, au RDC d’un immeuble sécurisé en monopropriété , rue Enguerrand à AMIENS, quartier calme
FLORENT CAILLE 2
Bel appartement MEUBLE très lumineux à louer de type T1BIS, d’une surface de 30 M² en très bon état, au 1er étage d’un immeuble sécurisé en monopropriété , rue Florent Caille à AMIENS, quartier calme
FLORENT CAILLE 3
Bel appartement MEUBLE très lumineux à louer de type T1BIS, d’une surface de 20 M² en très bon état, au 2éme étage d’un immeuble sécurisé en monopropriété , rue Florent Caille à AMIENS, quartier calme
JARDIN DES PLANTES
Bel appartement très lumineux à louer de type STUDIO, style « atelier d’artiste » , d’une surface de 19 M² , en très bon état, au RDC d’un immeuble sécurisé en monopropriété , bd jardin des plantes à AMIENS, quartier calme
JARDIN DES PLANTES
Bel appartement très lumineux à louer de type STUDIO , d’une surface de 17 M² avec GRENIER « aménagé », en très bon état, au 2éme étage d’un immeuble sécurisé en monopropriété , bd jardin des plantes à AMIENS, quartier calme
HOTOIE 1
Bel appartement très lumineux à louer de type T3, d’une surface de 66 M² en très bon état, au 1er étage d’un immeuble sécurisé en monopropriété , rue de la Hotoie à AMIENS, quartier calme
HOTOIE 2
Bel appartement très lumineux à louer de type T2, d’une surface de 64 M² en très bon état, au 2éme étage d’un immeuble sécurisé en monopropriété, rue de la Hotoie à AMIENS, quartier calme
HOTOIE 2 2
Bel appartement très lumineux à louer de type grand T2 / petit T3, d’une surface de 62 M² en très bon état, au 1er étage d’un immeuble sécurisé en monopropriété, rue de la Hotoie à AMIENS, quartier calme
LEMERCHIER 1 –
Bel appartement MEUBLE très lumineux à louer de type STUDIO, d’une surface de 12 M², en bon état, au RDC d’un immeuble sécurisé en copropropriété , rue Lemerchier à AMIENS, quartier calme
LEMERCHIER 4 –
Bel appartement MEUBLE très lumineux à louer de type STUDIO, d’une surface de 13 M², en bon état, au 1er étage d’un immeuble sécurisé en copropropriété , rue Lemerchier à AMIENS, quartier calme
LEMERCHIER 5
Bel appartement très lumineux à louer de type STUDIO, d’une surface de 16 M², en bon état, au 1er étage d’un immeuble sécurisé en copropropriété , rue Lemerchier à AMIENS, quartier calme
LEMERCHIER 7
Bel appartement très lumineux à louer de type STUDIO, d’une surface de 13 M², en bon état, au 2éme étage d’un immeuble sécurisé en copropropriété , rue Lemerchier à AMIENS, quartier calme
LEMERCHIER 8
Bel appartement très lumineux à louer de type STUDIO, d’une surface de 14 M², en bon état, au 2éme étage d’un immeuble sécurisé en copropropriété , rue Lemerchier à AMIENS, quartier calme
LESOT 101
Bel appartement très lumineux à louer de type STUDIO, d’une surface de 23 M² au RDC étage d’un immeuble sécurisé en monopropriété , rue Emile Lesot à AMIENS, quartier calme
LESOT 103
Bel appartement très lumineux à louer de type STUDIO, d’une surface de 23 M² au RDC étage d’un immeuble sécurisé en monopropriété , rue Emile Lesot à AMIENS, quartier calme
LESOT 112
Bel appartement très lumineux à louer de type STUDIO, d’une surface de 28 M² au 1er étage d’un immeuble sécurisé en monopropriété , rue Emile Lesot à AMIENS, quartier calme
LESOT 113
Bel appartement très lumineux à louer de type T2, d’une surface de 53 M² au 1er étage d’un immeuble sécurisé en monopropriété , rue Emile Lesot à AMIENS, quartier calme
LESOT 121
Bel appartement très lumineux à louer de type T2, d’une surface de 51 M² habitables (60M² au sol), en très bon état, au 2éme étage d’un immeuble sécurisé en monopropriété , rue Emile Lesot à AMIENS, quartier calme.
LESOT 122
Bel appartement très lumineux à louer de type T2, d’une surface de 42 M² , en très bon état, au 2éme étage d’un immeuble sécurisé en monopropriété , rue Emile Lesot à AMIENS, quartier calme.
LESOT 1
Bel appartement très lumineux à louer de type T2, d’une surface de 25 M² au RDC étage d’un immeuble sécurisé en monopropriété , rue Emile Lesot à AMIENS, quartier calme
LESOT 3
Bel appartement très lumineux à louer de type T2, d’une surface de 19M² habitable / 27M² au sol M² au 2éme étage d’un immeuble sécurisé en monopropriété , rue Emile Lesot à AMIENS, quartier calme
LONGUEAU 2
Bel appartement très lumineux à louer de type T2, d’une surface de 38 M² , en très bon état, au RDC d’un immeuble sécurisé en monopropriété , allée des jardiniers à LONGUEAU , quartier calme
LONGUEAU 3
Bel appartement très lumineux à louer de type STUDIO, d’une surface de 33 M² , en très bon état, au RDC d’un immeuble sécurisé en monopropriété , allée des jardiniers à LONGUEAU , quartier calme
LONGUEAU 4
Bel appartement très lumineux à louer de type T1BIS, d’une surface de 33 M² , en très bon état, au RDC d’un immeuble sécurisé en monopropriété , allée des jardiniers à LONGUEAU , quartier calme
LONGUEAU 5
Bel appartement très lumineux à louer de type STUDIO, d’une surface de 31 M² , en très bon état, au RDC d’un immeuble sécurisé en monopropriété , allée des jardiniers à LONGUEAU , quartier calme
LONGUEAU 10
Bel appartement très lumineux à louer de type T2, d’une surface de 38 M² , en très bon état, au 1er étage d’un immeuble sécurisé en monopropriété , allée des jardiniers à LONGUEAU , quartier calme
LONGUEAU 14
Bel appartement très lumineux à louer de type T1BIS, d’une surface de 34 M² , en très bon état, au 1er étage d’un immeuble sécurisé en monopropriété , allée des jardiniers à LONGUEAU , quartier calme
LONGUEAU 15
Bel appartement très lumineux à louer de type T1BIS, d’une surface de 31 M² , en très bon état, au 1er étage d’un immeuble sécurisé en monopropriété , allée des jardiniers à LONGUEAU , quartier calme
PAILLAT 2
Bel appartement lumineux à louer de type T1BIS en DUPLEX, d’une surface de 24 M² en très bon état, au RDC étage d’un immeuble sécurisé en monopropriété avec vue sur jardin intérieur, rue Alphonse Paillat à AMIENS, quartier calme
PAILLAT 5
Bel appartement MEUBLE très lumineux à louer de type STUDIO, d’une surface de 20 M² en très bon état, au RDC d’un immeuble sécurisé en monopropriété avec vue sur jardin intérieur, rue Alphonse Paillat à AMIENS, quartier calme
PAILLAT 6
Bel appartement très lumineux à louer de type T1BIS, d’une surface de 32 M² en très bon état, au 1er étage d’un immeuble sécurisé en monopropriété , rue Alphonse Paillat à AMIENS, quartier calme
PAILLAT 9
Bel appartement très lumineux à louer de type STUDIO, d’une surface de 21 M² en très bon état, au 2er étage d’un immeuble sécurisé en monopropriété , rue Alphonse Paillat à AMIENS, quartier calme
PAILLAT 10
Bel appartement très lumineux à louer de type T1BIS, d’une surface de 24 M² en très bon état, au 3eme étage d’un immeuble sécurisé en monopropriété , rue Alphonse Paillat à AMIENS, quartier calme
PAILLAT 11
Bel appartement très lumineux à louer de type STUDIO, d’une surface de 18 M² en très bon état, au 3éme étage d’un immeuble sécurisé en monopropriété , rue Alphonse Paillat à AMIENS, quartier calme
RIOLAN 1
Appartement très lumineux à louer de type STUDIO, d’une surface de 19 M² au RDC étage d’un immeuble sécurisé en monopropriété , rue Riolan à AMIENS, quartier calme
RIOLAN 4
Appartement très lumineux à louer de type STUDIO, d’une surface de 13 M² au RDC étage d’un immeuble sécurisé en monopropriété , rue Riolan à AMIENS, quartier calme
ROUEN 2
Bel appartement très lumineux à louer de type T2, d’une surface de 22 M² en bon état, au 1er étage d’un immeuble sécurisé en monopropriété , route de Rouen à AMIENS, quartier calme
ROUEN 4
Bel appartement très lumineux à louer de type T3, d’une surface de 51 M² en bon état, au 2eme étage d’un immeuble sécurisé en monopropriété , route de Rouen à AMIENS, quartier calme
STRASBOURG 2
Bel appartement très lumineux à louer de type T2 en duplex, d’une surface de 36 M² en bon état, au 1er étage d’un immeuble sécurisé en monopropriété , bd de Strasbourg à AMIENS, quartier calme
STRASBOURG 3
Bel appartement très lumineux à louer de type STUDIO, d’une surface de 14 M² en bon état, au RDC avec entrée indépendante d’un immeuble sécurisé en monopropriété , bd de Strasbourg à AMIENS, quartier calme
FATTON 5
Bel appartement très lumineux à louer de type T2, d’une surface de 45 M² habitable , refait à NEUF au 2éme étage d’un immeuble sécurisé en copropropriété , rue Alexandre Fatton à AMIENS
CARETTE 4
Bel appartement très lumineux à louer de type T2, d’une surface de 40 M² habitable (en très bon état, au 2éme étage d’un immeuble sécurisé en monopropriété , rue Philippe Carette à ALBERT quartier calme
HANGEST 4
Bel appartement très lumineux à louer de type T2, d’une surface de 35 M² habitable (en très bon état) , au 2éme étage d’un immeuble sécurisé en monopropriété , rue Jean Baptiste Carpentier à HANGEST SUR SOMME, quartier calme
AUCHY 1
Bel appartement très lumineux à louer de type T2, d’une surface de 53 M² habitable, rénové en très bon état, au RDC d’un immeuble avec entrée indépendante pour le logement , rue du comte d’Auchy à ST JUST EN CHAUSSE, quartier calme
LAVERSINES 5
Bel appartement très lumineux à louer de type T2, d’une surface de 28 M² habitable (42 M²) , en bon état, au 2éme étage d’un immeuble en monopropriété , rue ST Martin à LAVERSINES , quartier calme
FATTON 1
Bel appartement très lumineux à louer de type T2, d’une surface de 45 M² habitable , refait à NEUF au 1er étage d’un immeuble sécurisé en copropropriété , rue Alexandre Fatton à AMIENS
RIOLAN 114 –
Bel appartement MEUBLE très lumineux avec jardin à louer de type T2, d’une surface de 43 M² habitable , en très bon état, au RDC d’un immeuble sécurisé en copropropriété , rue Riolan à AMIENS, quartier calme
CHATEAUDUN
Secteur ST HONORE
Bel appartement très lumineux à louer de type T2 d’une surface de 60 M² habitable (58 M² au sol), en bon état, au 1er étage d’un immeuble sécurisé en monopropriété , bd Chateaudun à AMIENS quartier calme
Emplacement idéal : proche facs sud
Il est composé de
- 1 chambre au 2éme étage
- 1 grande pièce à vivre avec 1 cuisine aménagée et équipée ( plaques de cuisson, hotte, placards, évier)
- 1 salle de bain (douche, lavabo)
- 1 WC séparé,
- placards intégrés dans la pièce de vie
Il est équipé de volets
Prix : loyer 620€+ charges 60€ (eau +chauffage + minuterie)
ALBERT CARNOT 4
Bel appartement très lumineux avec jolis parquets anciens à louer de type T2, d’une surface de 37 M² habitable , rénové NEUF, au 1er étage d’un immeuble sécurisé en monopropriété , rue Carnot à ALBERT quartier calme